TV Studio 2
ESPN, Comedy Central, Showtime, PBS, BET, and the YES Network have all produced with us.
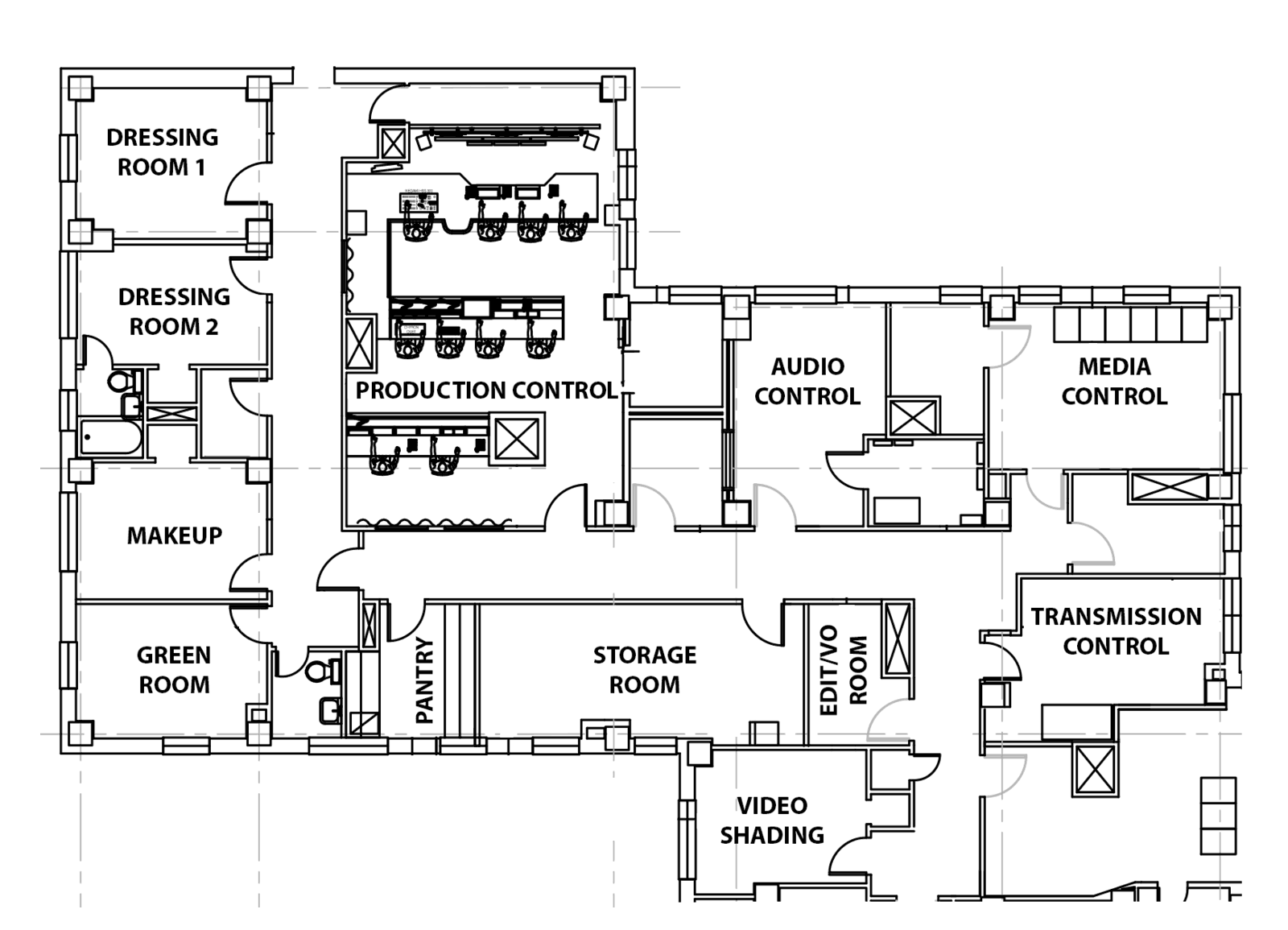
The studio features two green rooms, one makeup room, and one green room with an additional makeup station.
The studio features two green rooms, one makeup room, and one green room with an additional makeup station.
TV-2 Control Room
Steps away from the TV-2 sound stage is a spacious state-of-the-art production control room that features a 96 input Miranda KX Multiviewer, Grass Valley Kayenee 450-32 HD video switcher, Riedel digital matrix intercom panels, and custom-designed furniture to support today’s modern workflows.
The audio control room features an SSL C-100 audio mixing console.
Floor Plans
TV-2 Control Specs
- (3) Ikegami 24" HLM 2400 LCD HD/SD monitors
- (7) Ikegami 46" LCD HLM 4600 monitors with Miranda multiviewers
- (2) Genelec monitoring systems
- (2) Leitch time displays
- (1) Leitch up-down timers UDT-5701
(1) Grass Valley Kayenne 4.5ME
32 Button, 96 inputs, 48 outputs, 6 keyers per ME (total 30),
FlexiKey and DoubleTake, AMP, 999 macros, 1000 E-MEM
32 Button, 96 inputs, 48 outputs, 6 keyers per ME (total 30),
FlexiKey and DoubleTake, AMP, 999 macros, 1000 E-MEM
Also included,
- (1) KAYN-CLPS-CH4-LIC
- (16) Floating iDPM channels
- (2) GVG 3808 router panels
- (6) Aux busses
- (3) Riedel 28 key intercom panels RCP-1028E
- (4) NEC VOIP phones with internet access
MIDDLE (LEFT) CHYRON
- (1) Chyron HyperX3
- (4) Ikegami 9" HD LCD color video monitors
- (1) Acer 22" LED monitor
- (1) Riedel 12 key intercom panel RCP-1012E
- (1) NEC VOIP phone with internet access
MIDDLE (RIGHT) PRODUCERS
- (2) Riedel 28 key intercom panels RCP-1028E
- (1) Samsung 27" LCD monitor with multiviewer for producers
- (2) Ikegami 9" HD LCD color video monitors
- (1) Wohler amp audio monitor
- (2) GVG remote aux panels
- (2) NEC VOIP phones with internet access
- (1) Multi-function copier/printer
- (1) Ricoh printer
- (3) Riedel 28 key intercom panels RCP-1028E
- (2) Ikegami 9" HD-SDI LCD color video monitors
- (1) Ikegami 24" HLM-2400 LCD monitor for the LD
- (1) GVG Remote Aux panel
- (1) Ikegami Aux panel for HD productions for the LD
- (1) Wohler Amp audio monitor
- (1) Dell Computer for teleprompter with Q-TV QPro prompting program
- (1) 22" Samsung monitor
- Studio
- Control room
- Support spaces
- (11) Ikegami HDK97CP/CFM HD portable cameras w/studio config’s
- (4) Fujinon HA18x7.6BERM-M lenses
- (3) Fujinon HA14x4.5BERM lenses
- (4) Canon HD XJ25X6.8B lenses
- (1) 30ft Stanton Jimmy Jib
- (3) Sachtler Tripods with wheels
- (3) Sachtler Vario pedestals
- (5) Vinten Fulmar pedestals
- (2) Vinten Teal’s
- (4) Vinten Quattro’s
- (4) Autocue monitors/glass hoods
- (4) GVG K2 servers, 4 channels of record and playback with Channel Flex
- (1) GVG K2 Solo server, 2 channels of record and playback with Channel Flex
- (1) EditShare ENERGY 48 with AIC and 24 WD 2TB SATA drives w/ mirrored OS drive
Wired for 16 HD tape decks
- (2) DVD recorders
- (1) Blu-Ray playback
- (1) Leader 5100D digital WFM
- (1) Harris TVM-950E
- (2) DK Audio PTO600C III audio monitors
- (1) Ikegami 24" HLM-2400 HD LCD monitor
- (2) Ikegami HLM 1710WR HD LCD monitors
- (2) NEC 52" HD LCD monitors for use with K2 servers monitoring
- (2) GVG 3808 router panels
- (2) GVG CP-300 single destination router panels
- (1) GVG CP-3020 single destination router panel
- (3) Wohler Amp 1D digital audio monitors
- (24) Marshall HD repeat monitors
- (4) Riedel 12 key intercom panels
- (2) DNF ST-400 controllers
- (2) DNF Shotbox’s
- (2) Ikegami HLM 4600 HD LCD monitors
- (4) Ikegami HLM 2450 HD LCD monitors
- (1) Ikegami Master Station MCP-200
- (1) Samsung 22" LCD monitor for color correction control from Kayenne Switcher
- (2) Harris TVM-950E’s
- (2) Leader LV5100D Digital WFM’s
- (2) Wohler Amp-1DA stereo audio monitors
- (2) Riedel 28 key intercom panels RCP-1028E
- (2) GVG remote aux panels
- (2) FOR-A FA-9100’s with FA-90CC option
- (2) GVG 3808 router panels
- (8) AJA FS-1 frame syncs
- (1) GVG Trinix HD/SD router Jupiter Control 512X512
- (1) GVG Apex AES routing 384 x 384 balanced Apex TDM matrix board- 1024x256
- (1) GVG Concerto 64 X 64 time code and machine control router
- (1) SSL C-100 audio console
- (2) Dynaudio acoustic speakers
- (1) Denon DN-C 680 CD player
- (1) DigiCart Instant Replay 2
- (1) Riedel 28 key intercom panel RCP-1028E
- (1) GVG 3808 router panel
- (1) Wohler Amp 1A PF audio monitor
- (1) DK Audio PTO600C III audio monitor w/13" LCD monitor
- (1) NEC 55" LCD HD monitor with Miranda Alto Multiviewer
- (1) Sennheiser EM2050-B 2 channel receiver
- (2) Sennheiser SK2000XP-B body packs transmitters w/ MKE2 Omni lav’s
- (3) Sennheiser EM3032 dual receivers w/SK50-UHF mic’s
- (1) Sennheiser EM3031 receiver w/SK50-UHF mic
- (4) Letrosonic Wireless IFB’s
- (24) Telos Hybrid’s
- (1) Comrex Stac 12 Digital Hybrid
- (1) Riedel Acrobat wireless intercom system
- (1) NEC VOIP phone with internet access
- (1) Dugan Automixer
- (1) Yamaha 02R
- (5) JBL speakers VRX932LAP
- (2) JBL sub-woofers VRX918SP
- (1) Riedel 416X416 port Matrix System
- (1) Riedel Acrobat wireless intercom system
- (32) Riedel Acrobat wireless intercom belt packs
- (30) Riedel DCP-1116 desktop panels
- (16) Riedel Performer C3 wired belt packs
- (30) TELOS digital hybrid’s
- (2) Motorola Riedel radio base stations
- (16) Kenwood walkie talkies 16 channels
- (12) Letrosonic wireless IFB’s
- Supported by staff engineers
- Master Clock Evertz 5600MSC
- Evertz HD sync generator
- (8) AJA FS-1’s
- (8) Teranex 2D processors
- Master in-house MATV system with HD studios on system
- (4) Blonder & Tongue HD channel inserters HDE-ASI
- (1) Mitsubishi UPS 9900B 300KVA with 67min. run time @ full
- (8) BrightEye Mitto Pro’s
- AJA and BlackMagic embedders and de-embedders
- Separate transmission room to provide engineering monitoring of inbound and outbound feeds for pure confidence
- Encompass Media 1 inbound and 1 outbound HD-SDI
- Azzurro 1 inbound and 1 outbound HD-SD
STUDIO 2 STAGE
- (8) SMPTE camera fiber connections
- Video ties
- Audio ties
- Mic ties
HAMMERSTEIN BALLROOM
- (48) Main audio tie lines
- (16) Additional audio ties
- (12) SMPTE camera fiber connections / More is available on request
- (24) Single mode fiber ties
- (32) Video ties divided east and west of the room
- Yamaha Ether-sound back bone to connect direct to Apex router & SSL-C100
- Router panel connectivity
- Intercom panel connectivity
GRAND BALLROOM
- (56) Audio tie lines
- (16) Balcony video ties
- (48) Single mode ties to tech core from the stage
- (24) Single mode ties to tech core from the pantry
- (12) SMPTE camera fiber connections / More is available on request
- (6) Channels of intercom
- Yamaha Ether-sound back bone to connect direct to Apex router & SSL-C100
- Router panel connectivity
- Intercom panel connectivity
- Editing available by request.
- 48 terabyte edit-share for storage and file transfer






